Description
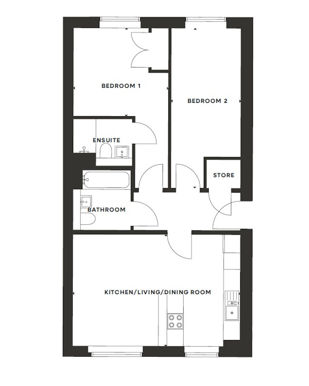
This apartment offers a well-designed layout, starting with a welcoming entrance hallway which includes a convenient storage cupboard. The open-plan kitchen seamlessly flows into the spacious living and dining area – perfect for modern living. There are two generously proportioned bedrooms. The main bedroom benefits from a fitted wardrobe for ample storage and its own en suite, adding a touch of luxury, while a stylish family bathroom serves the rest of the home.

