Description
The Honeysuckle is a delightful starter home or downsizer home. The ground floor contains a light and airy living room with wide double doors leading to the bright spacious kitchen/dining area, allowing the option of opening the space up and providing plenty of room to entertain. There is a convenient utility area and a spacious W.C. with storage space positioned towards the rear of the house. The first floor consists of a spacious master bathroom, further storage cupboard and two generous sized bedrooms. The master bedroom includes a large fitted wardrobe and two feature windows which make this a particularly bright and spacious room.
Floorplans & Dimensions
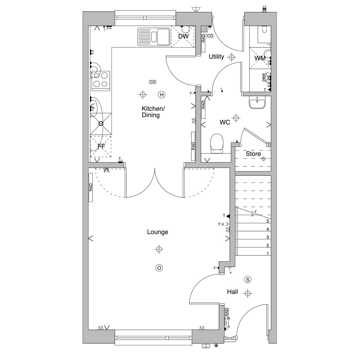
Honeysuckle ground floor floorplan
Lounge
4510mm x 3940mm 14'10" x 12'11"
Kitchen/Dining
3800mm x 2935mm 12'6" x 9'8"
WC
1850mm x 1950mm 6'1" x 6,5"
Utility area
1838mm x 1950mm 6'0" x 6'5"
Total Floor Area
85.6sqm 921sqft
Honeysuckle first floor floorplan
Bedroom 1
3545mm x 5085mm 11'7" x 16'8"
Bedroom 2
4800mm x 2810mm 15'9" x 9'3"
Bathroom
2300mm x 2160mm 7'7" x 7'1"
LBTT Calculator
This tool calculates the amount of LBTT due on a property purchase transaction. Find out more about LBTT rates and bands here.
Please note: if you are purchasing a property as a second/additional home or buy-to-let, your tax calculation will vary. Please seek advice from your financial advisor.
Repayment Calculator
Shows the cost per month and the total cost over the life of the mortgage, including fees & interest
This calculator is intended as a guide only. Cruden Homes does not provide mortgages. Please consult with an independent financial advisor for a personalised illustration.
YOUR HOME MAY BE REPOSESSED IF YOU DO NOT KEEP UP THE REPAYMENTS ON YOUR MORTGAGE OR ANY OTHER DEBT SECURED ON IT.
Budget Calculator
This calculator is intended as a guide only. Cruden Homes does not provide mortgages. Please consult with an independent financial advisor for a personalised illustration.
YOUR HOME MAY BE REPOSESSED IF YOU DO NOT KEEP UP THE REPAYMENTS ON YOUR MORTGAGE OR ANY OTHER DEBT SECURED ON IT.
Request a call back
We'd be delighted to start a conversation. Just leave your details below and we'll contact you at a time that suits you.
[0,1,7]
2022-09-19,2022-12-24,2022-12-27,2022-12-28,2022-12-29,2022-12-30,2022-12-31,2023-01-03,2023-01-04
Interested in Plot 20, Honeysuckle