Description
The Maple is a stylish 3 bedroom semi detached family home with lots of space and ample storage. The ground floor comprises of a spacious lounge with two feature windows and double doors leading into the kitchen/dining area. A spacious W.C. with a large storage cupboard completes this floor. The first floor consists of a master bedroom with en-suite shower room and two further good sized bedrooms with a well appointed family bathroom.
Floorplans & Dimensions
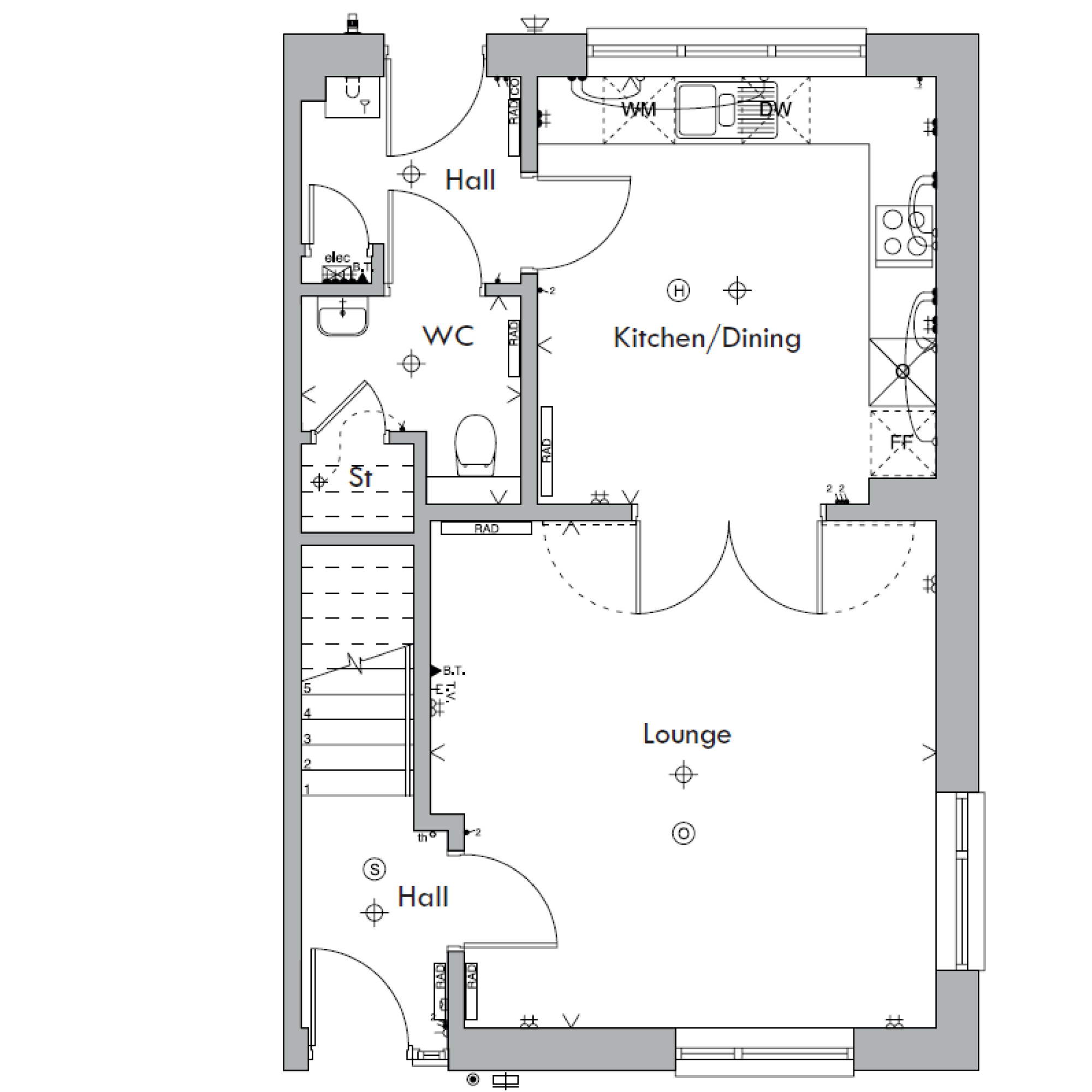
Ground Floor
LOUNGE
4510mm x 4500mm 14’10”x14’9”
KITCHEN / DINING
3800mm x 3545mm 12’6”x11’8”
WC
1950mm x 1850mm 6’5”x6’1”
TOTAL FLOOR AREA
94.8sqm 1020sqft
First Floor
BEDROOM 1
4855mm x 3045mm 15’11”x10’0”
BEDROOM 2
3490mm x 3320mm 11’5”x10’11”
BEDROOM 3
2980mm x 2490mm 9’9”x8’2”
ENSUITE
1850mm x 1590mm 6’1”x5’3”
BATHROOM
2300mm x 2210mm 7’7”x7’3”
LBTT Calculator
This tool calculates the amount of LBTT due on a property purchase transaction. Find out more about LBTT rates and bands here.
Please note: if you are purchasing a property as a second/additional home or buy-to-let, your tax calculation will vary. Please seek advice from your financial advisor.
Repayment Calculator
Shows the cost per month and the total cost over the life of the mortgage, including fees & interest
This calculator is intended as a guide only. Cruden Homes does not provide mortgages. Please consult with an independent financial advisor for a personalised illustration.
YOUR HOME MAY BE REPOSESSED IF YOU DO NOT KEEP UP THE REPAYMENTS ON YOUR MORTGAGE OR ANY OTHER DEBT SECURED ON IT.
Budget Calculator
This calculator is intended as a guide only. Cruden Homes does not provide mortgages. Please consult with an independent financial advisor for a personalised illustration.
YOUR HOME MAY BE REPOSESSED IF YOU DO NOT KEEP UP THE REPAYMENTS ON YOUR MORTGAGE OR ANY OTHER DEBT SECURED ON IT.
Request a call back
We'd be delighted to start a conversation. Just leave your details below and we'll contact you at a time that suits you.
[2,3,4]
2020-06-20,2020-06-21,2020-06-22,2020-06-26,2020-06-27,2020-06-28,2020-12-25,2020-12-26,2020-12-27,2020-12-28,2020-12-31,2021-01-01,2021-01-02,2021-01-03,2021-01-04
Interested in Plot 98, The Maple